【黃石】宏維.山水明城
更新時間:2019-03-26
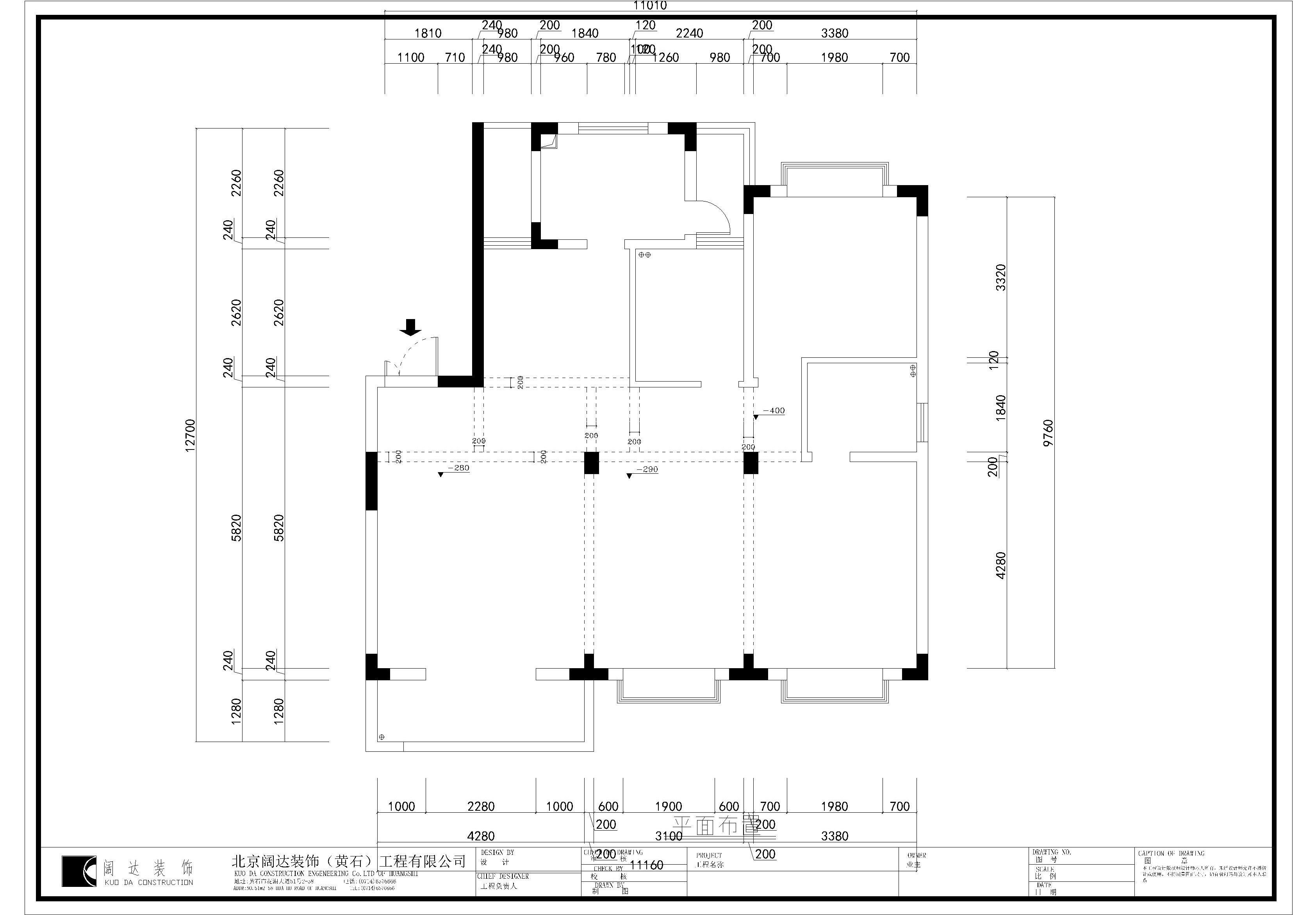
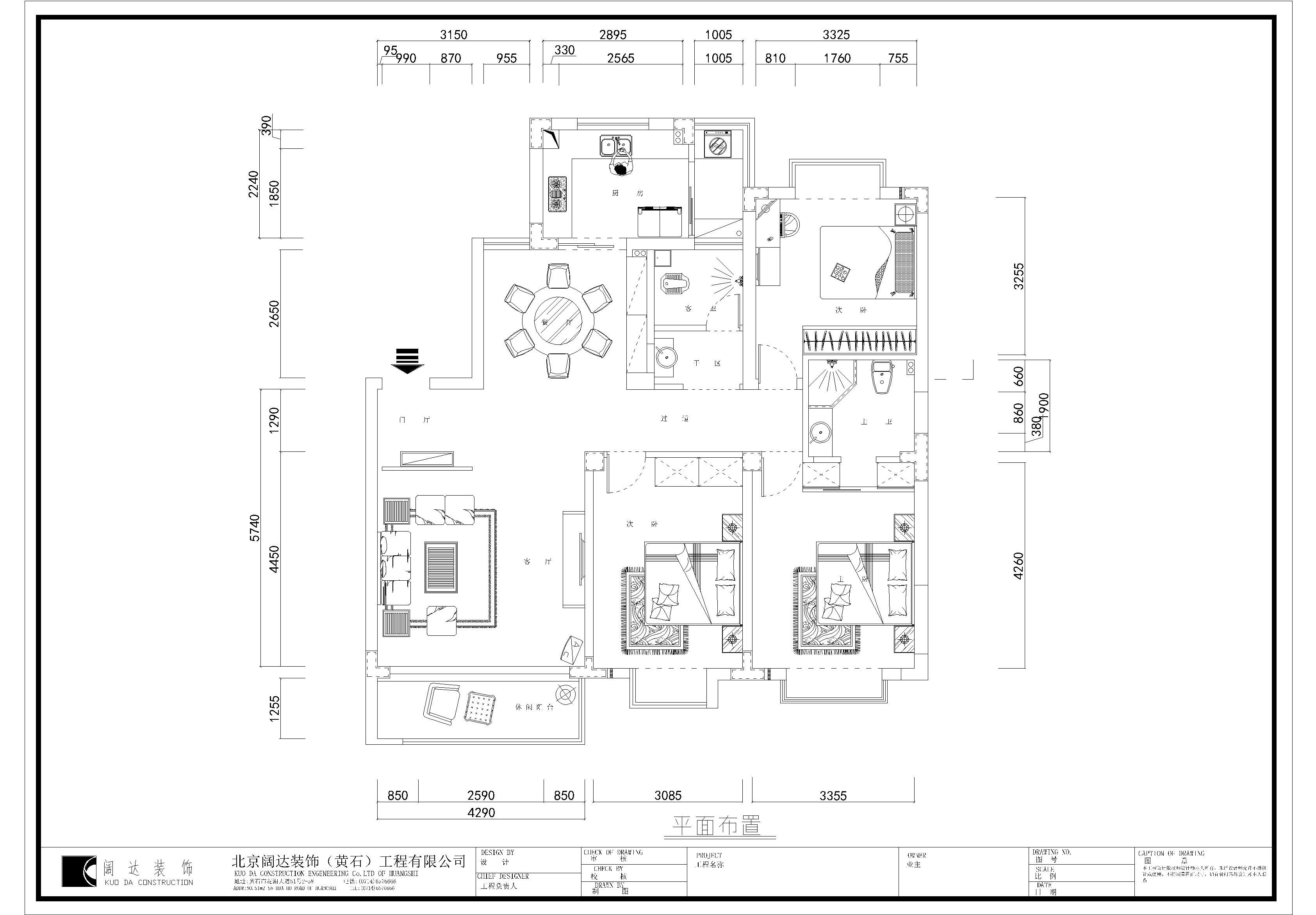
| 設計風格 | 新中式 | 戶型案例 | 三室兩廳一廚兩衛 | 案例面積 | 135 |
|---|---|---|---|---|---|
| 樓盤名稱 | 宏維.山水明城 | 所在城市 | 黃石市 | 案例造價 | 60萬 |
| 設計師 | 姜波 | ||||

案例說明:
簡約的空間形制,給予人一種回歸自然、俯仰自得的圓融自在感,傳統而溫馨的圓桌,中式青瓷搭配肆意生長的枝椏,別有一番鮮麗動人的意韻,居住的詩意成了狹小空間里的一小片風景。
同風格案例:更多>>
同面積案例:
| 客戶服務熱線: | 010-84580331 | 加盟咨詢熱線: | 010-82272748 | (工作日:9:00-18:00) |
預約加盟
預約裝修
客戶服務
返回頂部
闊達標準工程,一看就不同!
全國累計已有一百余家加盟公司
免費獲得家裝服務
全國各地業主都在申請!
闊達裝飾竭誠為您服務!
| 設計風格 | 新中式 | 戶型案例 | 三室兩廳一廚兩衛 | 案例面積 | 135 |
|---|---|---|---|---|---|
| 樓盤名稱 | 宏維.山水明城 | 所在城市 | 黃石市 | 案例造價 | 60萬 |
| 設計師 | 姜波 | ||||

簡約的空間形制,給予人一種回歸自然、俯仰自得的圓融自在感,傳統而溫馨的圓桌,中式青瓷搭配肆意生長的枝椏,別有一番鮮麗動人的意韻,居住的詩意成了狹小空間里的一小片風景。