【太原】碧桂園
更新時間:2019-03-29
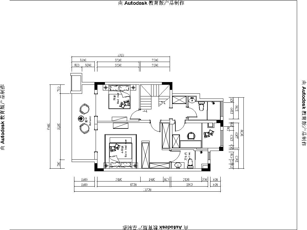
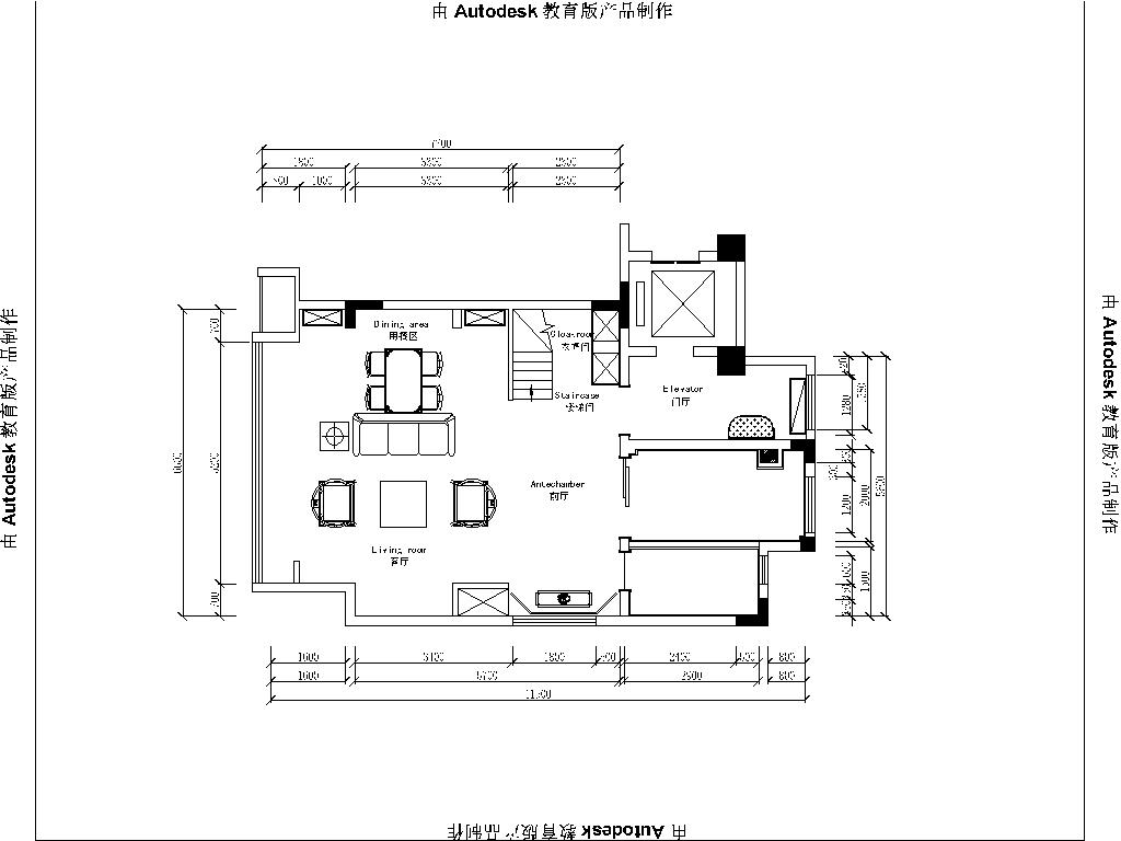
| 設計風格 | 新中式 | 戶型案例 | 別墅 | 案例面積 | 300 |
|---|---|---|---|---|---|
| 樓盤名稱 | 碧桂園 | 所在城市 | 太原 | 案例造價 | 97萬 |
| 設計師 | 楊依蕭 | ||||

案例說明:
此案例沒有繁瑣的裝飾,局部色彩的點綴和金屬扣線的裝飾使中式風格更具有現代靈動的感覺。整體空間闡釋這生活的哲思,回歸內心的平靜,去尋找屬于自己的靈魂,讓設計蛻變為有溫度的生活藝術。同風格案例:更多>>
同面積案例:
| 客戶服務熱線: | 010-84580331 | 加盟咨詢熱線: | 010-82272748 | (工作日:9:00-18:00) |
預約加盟
預約裝修
客戶服務
返回頂部
闊達標準工程,一看就不同!
全國累計已有一百余家加盟公司
免費獲得家裝服務
全國各地業主都在申請!
闊達裝飾竭誠為您服務!
| 設計風格 | 新中式 | 戶型案例 | 別墅 | 案例面積 | 300 |
|---|---|---|---|---|---|
| 樓盤名稱 | 碧桂園 | 所在城市 | 太原 | 案例造價 | 97萬 |
| 設計師 | 楊依蕭 | ||||
